Hospitality Suites

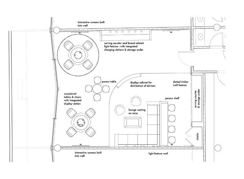
Taking an initial concept, working for Firecracker Works, I created sketches and visuals for 3 proposed hospitality suites for a high street brand. Using hand sketches, Vectorworks drawings and Cinema 4D visuals the client was able to quickly sign off the designs. From this point detailed construction drawings were produced for build in the workshop and construction on site.

EMPLOYER

Firecracker Works